二层别墅设计图纸别墅设计图纸新农村楼房屋自建筑全套施工效果图
第一款:
户型信息介绍:
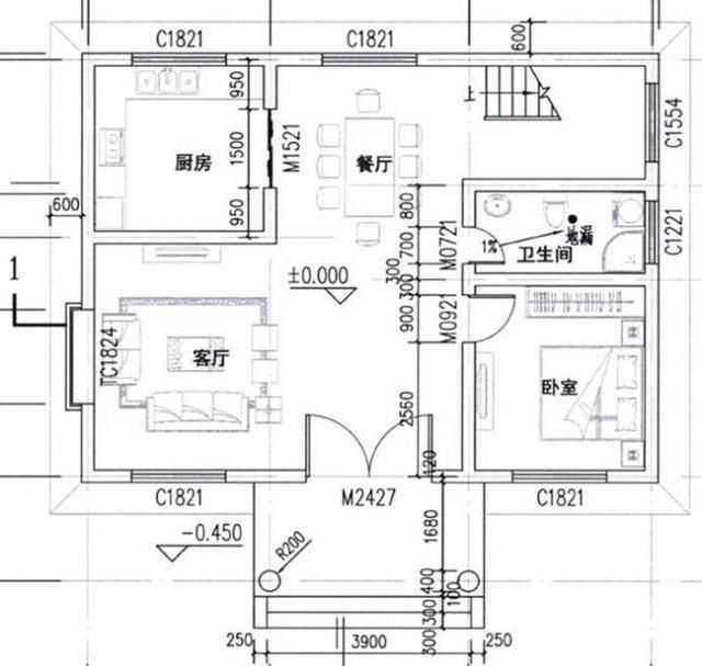
建筑层数:二层;占地尺寸:面宽12.36米x进深9.36米;
占地面积:115平方;造价预算:18万左右;
建筑总面积/总层高:222平米(不含入户平台、阳台、露台)/总高9.2米,屋檐口高6.9米;

平面布局图:



第二款:
户型信息介绍:
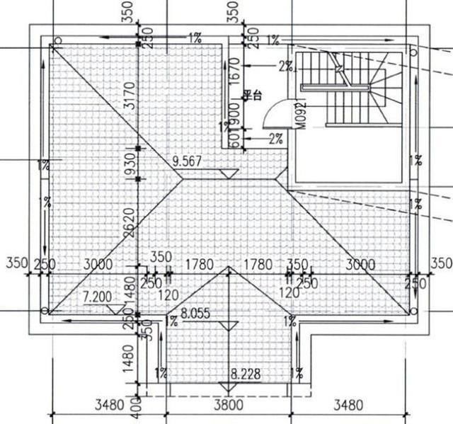
占地面积:11.0m*10.0m,110平方米左右;
建筑层高:二层;建筑高度:9.57米(含屋顶);

平面布局图:



第三款:
户型信息介绍:
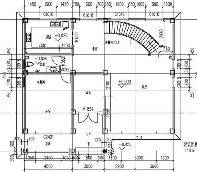
占地面积:14.0m*10.6m,148平方米左右;
建筑层高:二层;建筑高度:9.36米(含屋顶);

平面布局图:


2018年6月22日 11:12
ꄘ浏览量:0